
60 Перлина
м. Одеса, вул. Краснова 1-А
Опис комплексу
«KADORR CITY» — це сучасний житловий квартал нового покоління від Kadorr Group, створений для тих, хто цінує якість життя, близькість до центру Одеси та комфорт, продуманий до дрібниць. Комплекс розташований в Хаджибейському районі, що динамічно розвивається — тут вдало поєднуються міська інфраструктура, зручна транспортна доступність і атмосфера, в якій хочеться жити, ростити дітей і будувати плани на роки вперед.
«60 перлина» перший трисекційний будинок формує яскравий архітектурний силует, який гармонійно вписується в міський ландшафт. 24 поверхи, сучасні фасади, енергоефективні матеріали, швидкісні ліфти, продумана інженерія та автономне опалення — все це говорить про високий рівень будівництва та увагу до деталей, характерних для проектів Kadorr Group.


Особливості
«60 Перлина» — це не просто будинок, а повноцінне житлове середовище. Просторі квартири з зручними плануваннями, панорамними вікнами та продуманими технічними рішеннями дозволяють створити індивідуальний простір — затишний, світлий, функціональний. Високі стелі та вільні площі відкривають широкі можливості для дизайну, а якість матеріалів забезпечує комфорт на довгі роки.
Житловий квартал «KADORR CITY» — вибір для тих, хто шукає квартиру в Одесі для життя, а не просто квадратні метри. Це місце, де комфорт стає нормою, безпека — стандартом, а кожен день починається з відчуттям правильного вибору.
Технічні характеристики
Преміум
Клас
24
Поверховість
3
Секції
Монолітно-каркасний
Схема
2,9м
Висота стель
Газобетон
Матеріал стін
36-120м²
Площа квартир
1-3
Кімнат
Підземний
Паркінг
Цілодобова охорона
Територія
Від забудовника
Стан
4 кв. 2024 рік
Здача
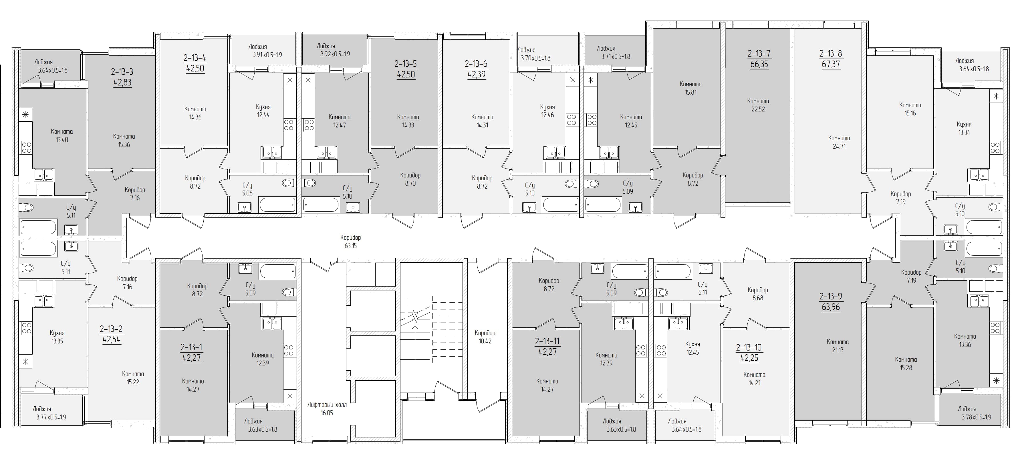
Планування типових поверхів



Дизайнерський ремонт від забудовника
KADORR GROUP пропонує квартири з готовим дизайнерським ремонтом напряму від забудовника. Ексклюзивні планувальні рішення розроблені провідними архітекторами з використанням сучасних матеріалів європейської якості.
Купити квартиру з ремонтом від забудовника — це гарантія якості, економія часу та коштів. Кожна планировка перевірена часом і адаптована під потреби сучасних сімей.
Переваги ремонту від забудовника:
- ✦Економія часу — без пошуку дизайнера та будівельних бригад
- ✦Прозорий бюджет — без додаткових платежів і непередбачених витрат
- ✦Єдиний стиль у всіх приміщеннях, продуманий дизайн
- ✦Готова квартира — для життя, оренди чи інвестицій
- ✦Гарантія якості та відповідність стандартам забудовника

Виберіть свою комплектацію ремонту
Три рівні — від базового до преміального з повним декором
БАЗОВИЙ
Готовий до життя простір з сучасним чистовим оздобленням.
- ✦Чистове оздоблення
- ✦Ламінат і плитка
- ✦Сантехніка
- ✦Кухонний каркас
СТАНДАРТ
Комфортний формат житла з меблями та технікою.
- ✦Повне оздоблення
- ✦Меблі та текстиль
- ✦Кухня з технікою
- ✦Домашній декор
ПРЕМІУМ
Вищий рівень комфорту з дизайнерським підходом.
- ✦Дизайнерський ремонт
- ✦Повне меблювання
- ✦Техніка світових брендів
- ✦Сучасний стиль
Формат життя «заїхати й жити» — ідеальний для особистого користування, здачі в оренду або інвестування в нерухомість.
Житло в Kadorr Group стало ще доступнішим
Сучасні квартири з дизайнерським ремонтом, готовою інфраструктурою та надійною забудовою можна придбати в розтермінування без банків та прихованих платежів — прозоро, офіційно та напряму від забудовника.
від 9%
річна ставка
від 25%
перший внесок
до 48 місяців
термін виплат
0%
комісії банків
Доступні варіанти придбання через державні програми України:
єОселя, єВідновлення, програми для військових
Залиште заявку — менеджер підбере оптимальну програму та розрахує щомісячний платіж.
Територія комплексу
Територія комплексу — це закрита внутрішня екосистема: дитячий садок, зони відпочинку та спорту, супермаркети, аптеки, банки, салони краси, кафе та побутові сервіси доступні прямо біля будинку. Продумане озеленення, прогулянкові маршрути, відеоспостереження 24/7 та охорона створюють безпечний і затишний простір, де кожна хвилина відчувається спокійною та захищеною. Для автомобілістів передбачені паркінги та зручні під’їзні шляхи.
Переваги ЖК «60 Перлина»
престижне розташування недалеко від центру Одеси
доступ до ключових об'єктів інфраструктури району
сімейний формат проживання, орієнтований на комфорт
високий стандарт будівництва Kadorr Group
збалансоване поєднання ціни, якості та локації

Хочете квартиру в новобудові від Kadorr Group за вигідною ціною?
Залиште заявку — і персональний менеджер підбере найкращий варіант під ваш бюджет, терміни та формат проживання чи інвестиції.
Ми допоможемо обрати квартиру з оптимальним плануванням, підкажемо умови покупки напряму від забудовника та розрахуємо вигідність у порівнянні з ринком.
Переваги консультації:
- ✦швидкий підбір актуальних планувань та поверхів
- ✦доступ до закритих пропозицій та акційних умов
- ✦розрахунок вартості та доходності при інвестиції в новобудову
- ✦підтримка на всіх етапах — від вибору до оформлення
Заповніть коротку форму — ми зв'яжемося з вами протягом робочого дня.
Зв'язатися з нами
Нам довіряють
Житловий комплекс «60 Перлина» уже обрали 649 людей. Оберіть і ви!
Купили квартиру у забудовника ще на етапі котловану. Заселилися у 2024 — все вийшло швидше, ніж очікували. Дуже подобається благоустрій та інфраструктура Kadorr City. 60 Жемчужина — сучасний та комфортний будинок.
Анна К.
Дата покупки: 03.2024
Вибрали квартиру з ремонтом «Стандарт» — зайшли і одразу живемо. Хороше планування, якісні матеріали. Локація зручна: до моря 10 хвилин, поруч магазини, садочки. Для мене один із найкращих варіантів новобудов в Одесі.
Олег М.
Дата покупки: 11.2023
Купували для інвестиції, бо район Краснова активно розвивається. 60 Жемчужина добре підходить під оренду, особливо з готовим ремонтом. Квартирантів знайшли швидко. Якість будинку — на своєму рівні.
Светлана Р.
Дата покупки: 07.2022
Брали квартиру з ремонтом «Преміум». Дуже стильне оформлення, техніка якісна. Було важливо купити житло під ключ, щоб не витрачати час на ремонт. Тішить, що забудовник вклався у строки.
Катерина Л.
Дата покупки: 02.2024
Купував ще з котловану, стежив за всіма етапами. Монолітно-каркасна технологія та якість матеріалів відчуваються. З мінусів — щільна забудова в Kadorr City, але сам будинок дуже комфортний.
Владислав П.
Дата покупки: 09.2020
Заселилися відразу після здачі в експлуатацію. Дуже сподобався двір та охорона. Все чисто, ново, продумано. До центру близько, транспорт ходить добре. Купівля напряму від забудовника — прозоро і безпечно.
Марина Ж.
Дата покупки: 05.2024
Переїхали з іншого району Одеси. Сподобалося, що у 60 Жемчужині хороші планування — не довелося нічого переплановувати. Єдине — паркомісця інколи важко знайти.
Ігор Д.
Дата покупки: 01.2021
Шукали новобудову для сім’ї. Kadorr City вразив інфраструктурою: дитячі майданчики, зелені зони, магазини. Квартира з базовим ремонтом виявилася гарною основою — зробили мінімальні доробки і живемо.
Елена С.
Дата покупки: 04.2024
Брав квартиру для здачі в оренду. Район популярний, орендодавці пишуть щодня. Ремонт «Стандарт» виглядає дорого, а ціна була приємною. Як інвестиція — дуже вигідно.
Григорий Т.
Дата покупки: 08.2023
Тільки придбали квартиру — обрали 60 Жемчужину за якість будівництва Kadorr Group та сучасні фасади. Порівнювали з іншими ЖК Одеси — тут однозначно найкраще співвідношення ціна/якість.
Юлія П.
Дата покупки: 12.2024
Приєднуйтесь до наших щасливих власників!

